Une référence du cabinet Oviedo Vadepied SAS, Cabinet d'Architecte CNOA à Paris, Reims, Amiens et alentours.
Agrandissement ou extension
Nos dizaines d’architectes partenaires sont sélectionnés pour la qualité de leur travail, en conception et en maîtrise d'œuvre, et interviennent sur tous types de projets.
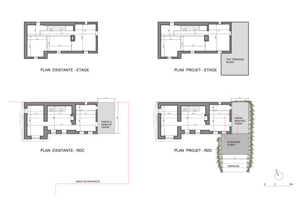
BEDOUIN-GLENEAU
Angers (49)
BEDOUIN-GLENEAU
Angers (49)
BEDOUIN-GLENEAU
Angers (49)
DEAR - Désirs d'Espaces Architectes Rennais
Rives-du-Couesnon (35140)
MUTE
Caen (14000)
ATELIER FLORENCE GAUDIN
Caen (14000)
Atelier Carré Noir
Argentonnay (79150)
SAAC
Domloup (35410)
Guinovart+Bourgeois
Lisieux (14100)
Oser mon intérieur
Noyal-sur-Vilaine (35530)
Studyo
Tours (37000)
SAAC
Cesson-Sévigné (35510)
B2AU
Tours (37)
Ancre Architecture
Cesson-Sévigné (35510)
Haddock Architecture
Chantepie (35135)
prn architectes
Rennes (35000)
Studio Crystelle Terrasson
Rennes (35000)
HU.TE Architecture
Rennes (35)
dessein.
Rennes (35000)
Ba
Rennes (35000)
Architecte CNOA
Châteauroux, Les Sables-d'Olonne, Saint-Nazaire, Angers, Nantes
Architecte
Paris, Saint-Gilles-Croix-de-Vie, Challans, Angers, Chemillé-en-Anjou
Architecte
Lorient, Brest, Rennes
Architecte CNOA
Saint-Ouen-sur-Seine, Rives-du-Couesnon, Besançon, Grenoble
Architecte CNOA
Sèvres, Mesquer, Nantes, Angers, Chartres
Architecte d'intérieur
Rennes, Lorient, Saint-Malo, Vannes, Plouhinec
Architecte CNOA
Paris, Caen, Ajaccio, Vincennes, Camembert
Architecte CNOA
Rennes, Châteaubriant, Combourg, Ploërmel, Saint-Malo
Architecte CNOA
Deauville, Giverny, Val-au-Perche, Avilly-Saint-Léonard, Paris
Architecte CNOA
Rennes, Saint-Brieuc, Saint-Lô, Vannes, Bruz
Architecte d'intérieur
Lorient, Rennes, Saint-Malo, Groix, Pontivy
Architecte CNOA
Paris, Saint-Lunaire, Rennes, Boulogne-Billancourt
Architecte d'intérieur
Paris, Saint-Ouen-sur-Seine, Angers, Trélazé, Beaucouzé
Architecte CNOA
Paris, Montluçon, Mortagne-au-Perche
Architecte CNOA
Angers, La Rochelle, Bordeaux, Vanne, Pau
Architecte CNOA
Montreuil, Alençon, Le Mans, Argentan, Caen
Architecte d'intérieur
Rennes, Vitré, Dinard, Saint-Malo
Architecte CNOA
Nantes, Angers, Vannes, Paris, Rennes
Architecte CNOA
Paris, Rennes, Aix-en-Provence, Marseille
Architecte CNOA
Paris, La Baule-Escoublac, Sablé-sur-Sarthe, Bordeaux, Marseille
Nous serions ravis de vous accompagner dans votre futur projet d’architecture.
Nos premiers échanges sont gratuits, cela va de soi.
Déposez votre projet en ligne, nous revenons vers vous avec des réponses claires et un plan d'action.
Mon Espace ProjetNous aurons besoin d'informations claires, comme de l'adresse du bien, des données économiques, de vos besoins en terme d'accompagnement...
01 88 32 99 15Nous vous répondons sous 24h. N'hésitez pas à nous donner le maximum d'informations dans votre adresse du bien, surfaces, objectifs, budgets...
bonjour@archibien.comIls sont passés par Archibien. Comme eux, réalisez le projet dont vous rêvez, mais en mieux.

“Une réelle valeur ajoutée en tant que porteur de projet.”Robert Wrigley
“La valeur ajoutée par le service Archibien est réelle et justifie amplement d'y investir quelques centaines d’euros.”Mathilde Vandewalle
“Nous avons souvent eu la problématique de trouver le bon architecte pour nos projets immobiliers. Archibien nous a enlevé cette épine du pied !”Benjamin Etienne