Une référence de Paul Devarrieux,Romain Mellet du cabinet DEVARRIEUXMELLET, Cabinet d'Architecte CNOA à Paris, Bordeaux et alentours.
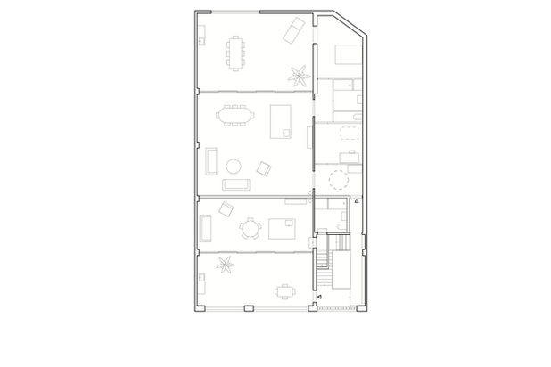
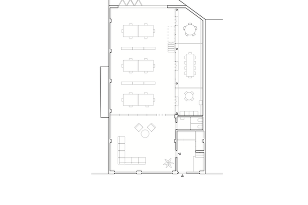
Réhabilitation
Nous serions ravis de vous accompagner dans votre futur projet d’architecture.
Nos premiers échanges sont gratuits, cela va de soi.
Déposez votre projet en ligne, nous revenons vers vous avec des réponses claires et un plan d'action.
Mon Espace ProjetNous aurons besoin d'informations claires, comme de l'adresse du bien, des données économiques, de vos besoins en terme d'accompagnement...
01 88 32 99 15Nous vous répondons sous 24h. N'hésitez pas à nous donner le maximum d'informations dans votre adresse du bien, surfaces, objectifs, budgets...
bonjour@archibien.comIls sont passés par Archibien. Comme eux, réalisez le projet dont vous rêvez, mais en mieux.

“Ravis des trois projets présentés, du professionnalisme et de la qualité d’écoute des architectes.”Perrine Decatoire
“Nous avons souvent eu la problématique de trouver le bon architecte pour nos projets immobiliers. Archibien nous a enlevé cette épine du pied !”Benjamin Etienne
“Une équipe ultra-réactive, une compréhension du besoin très fine, et un accompagnement tout au long du processus.”Cédric Marant