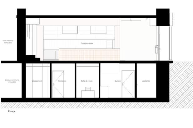
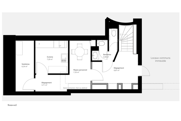
Une référence de Noemie Savary du cabinet Noemie Savary Architecte, Cabinet d'Architecte CNOA à Carrières-sur-Seine, Paris et alentours.
Rénovation
Nos dizaines d’architectes partenaires sont sélectionnés pour la qualité de leur travail, en conception et en maîtrise d'œuvre, et interviennent sur tous types de projets.
Atelier NoMa
Paris
STUDIO ZERCK
Paris (75)
Henri Guérin Dessert Architecte
Paris
ATELIER JMCA
Paris
Y&Y STUDIO ARCHITECTURE
Paris (75)
Imma Sierra
Paris (75)
Atelier 1060
Paris
MUTOA
Paris (75)
Atelier NoMa
Paris
GHAR
Paris
POLY
Paris
ATELIER JMCA
Paris (75005)
ATELIER JMCA
Paris (75003)
ATELIER JMCA
Paris (75003)
ATELIER JMCA
Paris (75003)
PARALLELOA
Paris (75001)
Studio Gomar
Paris (75002)
LAC Architecture
Paris (75000)
studiobravo
Paris (75002)
Gramme
Paris (75010)
Architecte CNOA
Carrières-sur-Seine, Paris
Architecte
Puteaux, Marseille, Rouen
Architecte CNOA
Jouy-en-Josas, Copenhague, Buc, Bourbonne-les-Bains, Épinal
Architecte CNOA
Paris, Bruxelles
Architecte CNOA
Marseille, L'Isle-sur-la-Sorgue, Paris, Saint-Tropez, Lourmarin
Architecte CNOA
Troyes, Reims, Saint-Brieuc, Paris
Architecte CNOA
Saint-Ouen-sur-Seine, Rives-du-Couesnon, Besançon, Grenoble
Architecte CNOA
Paris, Nice
Architecte CNOA
Sèvres, Mesquer, Nantes, Angers, Chartres
Architecte CNOA
Paris, Bordeaux, Ajaccio, Rouen
Architecte CNOA
Paris, Gaillon, Pont-l'Abbé, Montravers, Mimizan
Architecte CNOA
Paris, Noirmoutier-en-l'Île, Le Pouliguen, Nantes
Architecte CNOA
Paris, Caen, Ajaccio, Vincennes, Camembert
Architecte CNOA
Lyon, Paris, Marseille, Bordeaux, Lille
Architecte
Hautot-l'Auvray, Paris, Pau, Bruxelles
Architecte CNOA
Paris, Compiègne, Dijon
Architecte d'intérieur
Paris, Saint-Étienne, Vallon-Pont-d'Arc
Architecte CNOA
Paris
Architecte CNOA
Paris, Colombes, Vincennes, Brignoles, Achères-la-Forêt
Architecte CNOA
Paris
Nous serions ravis de vous accompagner dans votre futur projet d’architecture.
Nos premiers échanges sont gratuits, cela va de soi.
Déposez votre projet en ligne, nous revenons vers vous avec des réponses claires et un plan d'action.
Mon Espace ProjetNous aurons besoin d'informations claires, comme de l'adresse du bien, des données économiques, de vos besoins en terme d'accompagnement...
01 88 32 99 15Nous vous répondons sous 24h. N'hésitez pas à nous donner le maximum d'informations dans votre adresse du bien, surfaces, objectifs, budgets...
bonjour@archibien.comIls sont passés par Archibien. Comme eux, réalisez le projet dont vous rêvez, mais en mieux.

“La valeur ajoutée par le service Archibien est réelle et justifie amplement d'y investir quelques centaines d’euros.”Mathilde Vandewalle
“Cette équipe a un excellent sens du service.”Catherine Doucet
“Ravis des trois projets présentés, du professionnalisme et de la qualité d’écoute des architectes.”Perrine Decatoire