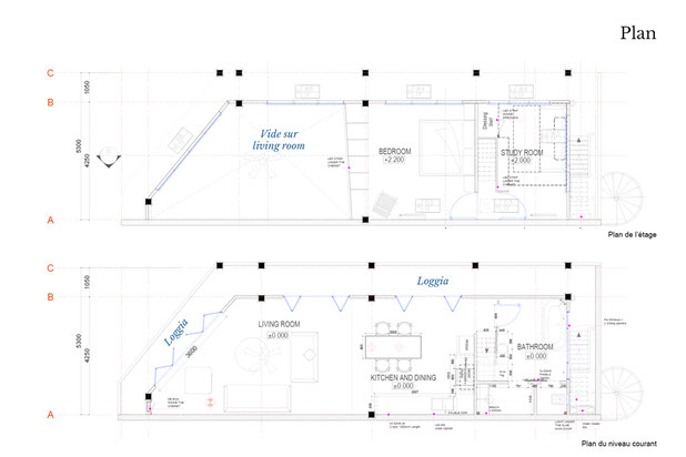
Une référence de Alexiane Bourcier du cabinet atelier A|B, Cabinet d'Architecte à Paris, Saint-Gilles-Croix-de-Vie, Challans, Angers, Chemillé-en-Anjou et alentours.
Réhabilitation
Nos dizaines d’architectes partenaires sont sélectionnés pour la qualité de leur travail, en conception et en maîtrise d'œuvre, et interviennent sur tous types de projets.
Nous serions ravis de vous accompagner dans votre futur projet d’architecture.
Nos premiers échanges sont gratuits, cela va de soi.
Déposez votre projet en ligne, nous revenons vers vous avec des réponses claires et un plan d'action.
Mon Espace ProjetNous aurons besoin d'informations claires, comme de l'adresse du bien, des données économiques, de vos besoins en terme d'accompagnement...
01 88 32 99 15Nous vous répondons sous 24h. N'hésitez pas à nous donner le maximum d'informations dans votre adresse du bien, surfaces, objectifs, budgets...
bonjour@archibien.comIls sont passés par Archibien. Comme eux, réalisez le projet dont vous rêvez, mais en mieux.

“En un mois, vous passez d’une feuille blanche à trois esquisses qui collent à vos besoin et votre budget.”Capucine Caucheteux
“Ravis des trois projets présentés, du professionnalisme et de la qualité d’écoute des architectes.”Perrine Decatoire
“Formidable expérience que de passer par Archibien pour notre projet de rénovation de maison. Le plus dur fut de choisir parmi les 3 projets :)”Antoine Leprêtre