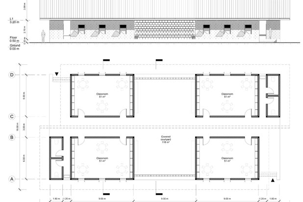
Une référence de Diego Rodriguez De Martini du cabinet BOGGA Design Studio, Cabinet d'Architecte à Paris, Ivry-sur-Seine, Ajaccio, Caracas et alentours.
Construction
Nous serions ravis de vous accompagner dans votre futur projet d’architecture.
Nos premiers échanges sont gratuits, cela va de soi.
Déposez votre projet en ligne, nous revenons vers vous avec des réponses claires et un plan d'action.
Mon Espace ProjetNous aurons besoin d'informations claires, comme de l'adresse du bien, des données économiques, de vos besoins en terme d'accompagnement...
01 88 32 99 15Nous vous répondons sous 24h. N'hésitez pas à nous donner le maximum d'informations dans votre adresse du bien, surfaces, objectifs, budgets...
bonjour@archibien.comIls sont passés par Archibien. Comme eux, réalisez le projet dont vous rêvez, mais en mieux.

“Pouvoir échanger avec trois architectes qui ont des visions différentes et choisir celui qui correspond le plus à nos attentes, le principe est superbe.”Virginie Polguere
“Le choix a été extrêmement difficile tellement les propositions des architectes étaient toutes pertinentes...”Chrystele Lefoul
“Ravis des trois projets présentés, du professionnalisme et de la qualité d’écoute des architectes.”Perrine Decatoire