
Bureaux, Immeuble, Café ou restaurant, Local, Appartement, Maison, Surélévation, Hôtel, Atelier ou loft, Extension, Équipement, Logement, Boutique ou local
Brique, Réemploi, BEPOS Effinergie, Verre, Terre, Monument historique, Habitat groupé, Paille, Auto-construction, Co-construction, BBC, Matériaux bio-sourcés, Bâtiments passifs, Bâtiment écologique, Habitat participatif, Habitat partagé, Matériaux issus du réemploi, Établissement recevant du public (ERP), Métal, LEED, Haut de gamme, Préfabrication, BREEAM, HQE, Bâtiment ancien, Bois, Circuits courts, Marché public, Parpaing, Milieu de gamme, Luxe, Pierre, Passivhaus
Voici le book du cabinet Atelier Carré Noir. Ce portfolio comprend une sélection de travaux et références de l'agence.
Réhabilitation
Grottole (75010)
Aménagement
Limoges (87)
Construction d'un équipement
La Puebla de Fantova (22437)
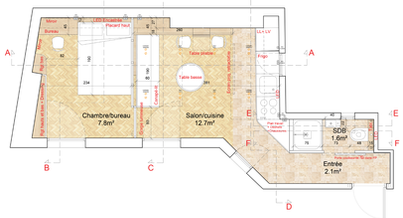
Rénovation d'un appartement
Pantin (93500)
Rénovation d'un appartement
Paris (75018)
Rénovation d'un appartement
Paris (75011)
Agrandissement ou extension d'une maison
Quincy-Voisins (77860)
Rénovation d'un appartement
Paris (75020)
Aménagement
Torrelavega (39300)
Surélévation d'un appartement
Paris (75020)
Réhabilitation d'un équipement
Fleurance (32500)
Construction d'un logement
Argentonnay (79150)
Nos dizaines d’architectes partenaires sont sélectionnés pour la qualité de leur travail, en conception et en maîtrise d'œuvre, et interviennent sur tous types de projets.
Architecte d'intérieur
Paris, La Rochelle
Architecte CNOA
Paris, Reims, Bordeaux, Brie-Comte-Robert, Charleville
Architecte d'intérieur
Yèbles, Paris, Meaux, Melun, Provins
Architecte
Paris, Marseille, Nice
Architecte CNOA
Paris, Nantes, Quiberon, Fontainebleau
Architecte CNOA
Paris
Architecte
Paris, Les Lilas
Architecte CNOA
Paris, Bayonne, Cherbourg-en-Cotentin
Architecte CNOA
Paris
Architecte CNOA
Paris, Évreux
Architecte d'intérieur
Paris, Luxembourg, Bruxelles, Strasbourg, Le Havre
Architecte CNOA
Paris, Lyon, Veauche, Strasbourg, Saint-Étienne
Architecte CNOA
Paris, Aubervilliers, Arpajon, Rouen
Architecte CNOA
La Rochelle, Paris, Senlis, Versailles, Le Chesnay-Rocquencourt
Architecte CNOA
Bordeaux, Metz, Paris, Reims, Toulouse
Architecte d'intérieur
Reims, Paris, Trouville-sur-Mer, Metz, Lyon
Architecte CNOA
Nantes, Angers, Vannes, Paris, Rennes
Architecte
Dinard, Paris
Architecte CNOA
Paris, Casablanca, Lyon, Tours, Toulouse
Architecte CNOA
Paris, Clermont-Ferrand, Genève, Saint-Denis
Nous serions ravis de vous accompagner dans votre futur projet d’architecture.
Nos premiers échanges sont gratuits, cela va de soi.
Déposez votre projet en ligne, nous revenons vers vous avec des réponses claires et un plan d'action.
Mon Espace ProjetNous aurons besoin d'informations claires, comme de l'adresse du bien, des données économiques, de vos besoins en terme d'accompagnement...
01 88 32 99 15Nous vous répondons sous 24h. N'hésitez pas à nous donner le maximum d'informations dans votre adresse du bien, surfaces, objectifs, budgets...
bonjour@archibien.com
“Nous avons souvent eu la problématique de trouver le bon architecte pour nos projets immobiliers. Archibien nous a enlevé cette épine du pied !”Benjamin Etienne
“Une équipe ultra-réactive, une compréhension du besoin très fine, et un accompagnement tout au long du processus.”Cédric Marant
“En un mois, vous passez d’une feuille blanche à trois esquisses qui collent à vos besoin et votre budget.”Capucine Caucheteux
Le positionnement sur la carte est approximatif.
Le contenu présent dans cette page a été édité et publié par Atelier Carré Noir. Atelier Carré Noir est une structure juridiquement indépendante d'Archibien.com.
Pour nous signaler tout contenu déplacé ou offensant merci d'utiliser le formulaire de contact du site internet en précisant l'adresse web de cette page.